|
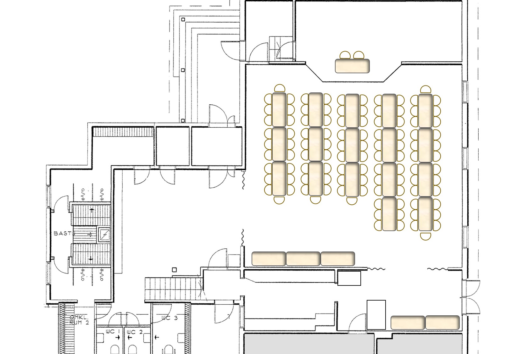
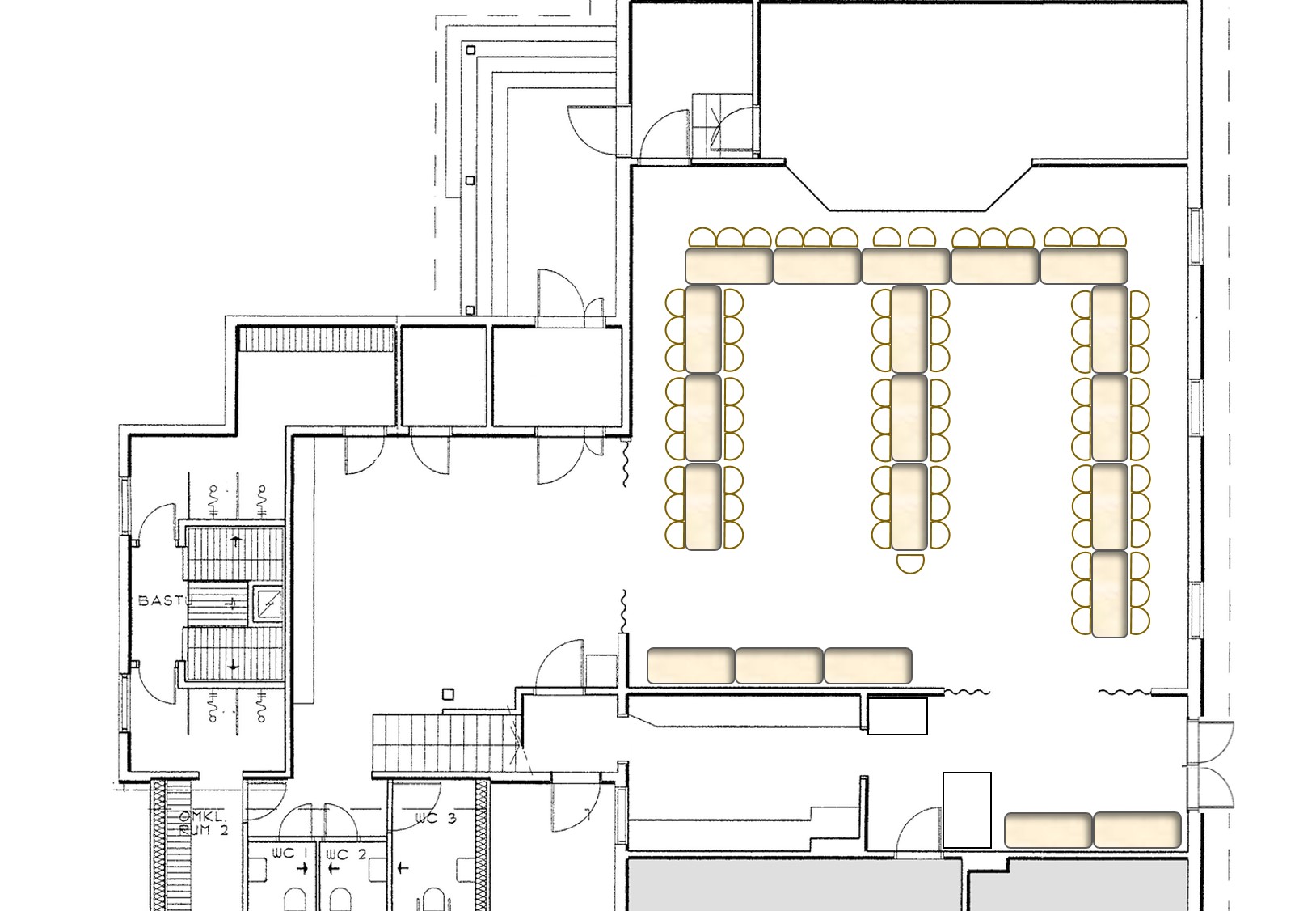
Bordsplaceringsalternativ
Pöytäjärjestelyt
Träskberga föreningshus |
|
Träskberga är en vackert belägen och moderniserad luftkonditionerad förenings- och festlokal som passar utmärkt för bröllop, födelsedagsfest, släktfest, barnkalas, idrottsevenemang och möten för upp till 110 gäster.
Huset har en ca 105 m2 stor festsal med scen och ljus- och ljudteknik, stor 80 m2 terass, vackert år 2016 renoverat serveringsrum och välutrustat år 2020 renoverat kök med inventarier.
Det finns även en representativ bastu samt klubbrum byggda år 2013. Det finns ca 130 stolar, bord för 6-8 pers. (+ 4 st. 10-12. pers bord) + dukar för borden, samt skilda dukar för bufféborden.
Övrig utrustning: Gratis WLAN, vinskåp, PA-utrustning, mikrofon och DVD/karaoke-spelare, 106" projektorduk, Full HD projektor, TV med dtv-mottagning samt extern digibox, discoljus, rökmaskin, mm.
Terassen har kvällssol och kan utrustas med presenningstak. Man kan även hyra gasgrill, samt ett champagnefärgat partytält av högklassisk vattentät polyester. Tältet rymmer ca 35 pers.
Vid större tillställningar kan Träskberga erbjuda plats för max. 160 personer för teater eller föreläsning, eller max. 240 personer utan sittplatser 1).

Förfrågningar och reserveringar1) Se bokningssituationen! 2) Kontakta oss: |
|
|
|
|
| e-post: | ufkamraterna [a] gmail.com |
| : | |
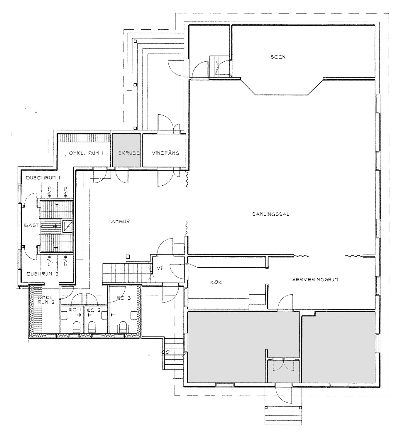
Utrymmen och utrustning
Teknik tillgänglig vid förfrågan:
Övrigt
1) Den maximala tillåtna mängden personer som får vistas i lokalen samtidigt är enligt myndigheterna 180 med sittplatser eller 240 med endast ståplatser. Observera att det finns ca. 130 stolar på Träskberga. 2) Som serveringsbord fungerar pingisbordet på hjul. |


En privat tillställning på Träskberga kräver anmälan till polisen i det fall man har alkoholservering. En privat fest kräver att de som är bjudna är namngivna personer på en lista som arrangören har. En förening uppfyller detta krav då man bjuder in medlemmarna i föreningen.
Anmälningar om bröllop och större födelsedagsfester är de vanligaste anmälningar som kommer in till polisen. Trots att ett bröllop eller en fest kan ha flera hundra deltagare är de ändå till sin natur en sådan tillställning att de tolkas som en privat tillställning (och inte som en offentlig tillställning), och då behövs endast en anmälan om privat tillställning med alkoholservering till polisen.
Man skall komma ihåg att det är alkoholserveringen på en privat fest i en allmän samlingslokal (som Träskberga) som gör att man måste göra en anmälan till polisen. Ifall det inte finns alkohol på en privat fest behöver ingen anmälan göras, men det kan ända vara bra att informera polisen.
Offentliga tillställningar som polisen beviljar lov kan hålla på till senast 02:00. Den som ordnar en privat tillställning kan ha det som rättesnöre.
| Polisen: Behandling av en anmälan som avses i 59 § i alkohollagen (1142/1994) | Anmälan om utskänkning av alkohol 16,00 € | Länk |
| Alkohollagen 59 § Privata tillställningar |
När slutna tillställningar ordnas i andra allmänna lokaler än sådana som avses i 58 § 1 mom 2 punkten (= restauranger) får alkoholdrycker förtäras, om tillställningens arrangör har gjort en anmälan om saken till polisen. | Länk |
I övrigt så gäller på Träskberga Alkohollagens 58 §:
Förtäringsförbud
Om annat inte följer av denna lag är det förbjudet att förtära alkohol i lokaler där offentliga tillställningar ordnas. På dessa ställen får ägaren, arrangören eller en ordningsvakt inte tillåta förtäring av alkoholdrycker eller servera alkoholdrycker utan tillstånd.

Träskberga sommaren 2013